1 annonces

Etendre ma recherche

1 annonces
1 annonces
1 annonces
1 annonces

Particularité de l'annonce

Commodités

Confort

Etage

Extérieur

Style

Environnement

Etat

Sécurité

Mesures fiscales

1 annonces

Boutique immobilier à Alpes-de-Haute-Provence (04)

4 annonces
5
Sainte-Tulle 04220

Dans la zone artisanale de Sainte Tulle, hangar commercial à louer.
Idéalement situé, raccordé en eau et électricité (380 kWh).

Pour une surface totale d'environ 80m²
Porte mécanique de 4m sur 2.8m. Extérieur clos avec portail.


Provision pour charge : 100€ (Entretien pompe à chaleur et taxe d'ordure ménagère)

7
Manosque 04100

MANOSQUE, sur l'axe principal beau local commercial à louer.
Emplacement de 1er choix pour ce local en RDC proche de grandes enseignes, énorme visibilité assurée. Local d'une surface de près de 70m² avec grande vitrine. Parkings à proximité immédiate.
Loyer comprenant charges de copropriété et taxes foncières.
Plus de renseignements sur demande.

4
Manosque 04100

Manosque, murs commerciaux à vendre à proximité immédiate de la gare routière.
Surface de vente de plus de 30m². Local composé de deux vitrines, idéal pour profession libérale. Local vendu avec parking privatif. Belle vitrine côté rue de 3M environ.

5
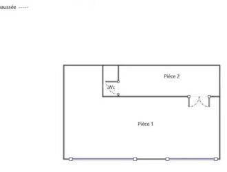
Manosque 04100

A Manosque sur une avenue passante, a proximité immédiate de parkings, en rez de chaussée, local commercial. Pour une surface d'environ 45m², il est composé d'une grande pièce avec vitrine donnant sur la rue et d'un deuxième pièce avec lavabo et WC. Prévoir rafraîchissement.
Bail tous commerces (sauf nuisances odorantes).

Libre immédiatement.

Loyer mensuel : 522€ CC (dont 22€de charges)
D.G : 1000 €
F.A : 720 € TTC

Contactez nous au 04.92.78.12.13

Soyez le premier informé !

Recevez en temps réel les annonces correspondant à votre recherche.